Floor Plan
| 
 
 
 
 
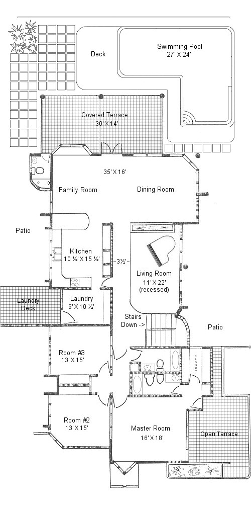
View of the First or Lower level of the house.  
 
View of the Second or Upper level of the house.
 | 
 
 For more information contact the Travel Agent who sent you to this page.  
 
To go back to the property info click HERE